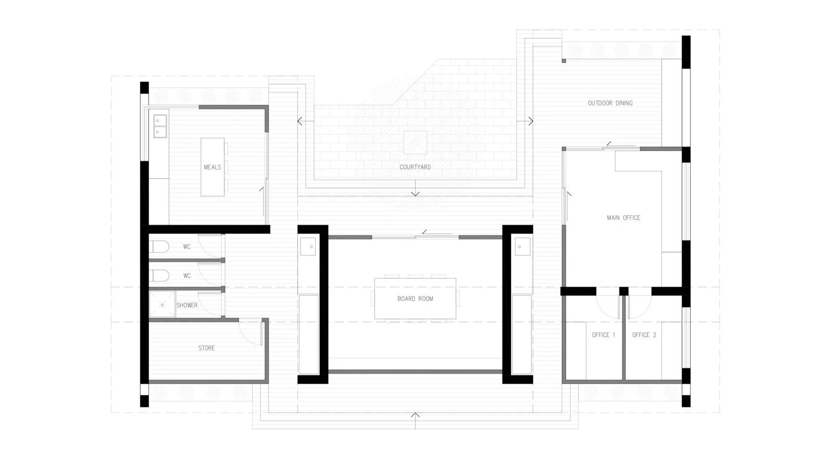
Boort Office was a project theorised for a large farm to act as the base for all their business operations. The design centres around a large open courtyard space which three distinct pavilions are all directly accessed off.
BOORT OFFICE
Boort Office was a project theorised for a large farm to act as the base for all their business operations. The design centres around a large open courtyard space which three distinct pavilions are all directly accessed off.